RESOLUCIÓN 865 DE 2012
(noviembre 23)
Diario Oficial No. 48.629 de 29 de noviembre de 2012
FONDO NACIONAL DE VIVIENDA
Por la cual se adopta el formulario de postulación al Subsidio Familiar de Vivienda urbano vinculado a Macroproyectos de Interés Social Nacional
EL DIRECTOR EJECUTIVO DEL FONDO NACIONAL DE VIVIENDA – FONVIVIENDA,
en ejercicio de sus facultades legales, en especial las que le confiere el numeral 3 del artículo 8o del Decreto número 555 de 2003 y el artículo 5o del Decreto número 3450 de 2009, y
CONSIDERANDO:
Que mediante el Decreto número 555 de 2003, se ordenó la creación del Fondo Nacional de Vivienda, el cual tiene entre otras funciones la de asignar subsidios de vivienda de interés social bajo las diferentes modalidades de acuerdo con la normatividad vigente sobre la materia y con el reglamento y condiciones definidas por el Gobierno Nacional.
Que el Decreto número 3450 de 2009 reglamentó el Subsidio Familiar de Vivienda vinculado a Macroproyectos de Interés Social Nacional, estableciendo la postulación de los hogares mediante el diligenciamiento del formulario de postulación ante el operador autorizado.
Que el Fondo Nacional de Vivienda mediante Resolución número 750 del 30 de septiembre de 2009 adoptó el formulario de postulación al subsidio familiar de vivienda urbano vinculado a Macroproyectos de Interés Social Nacional.
Que se hace necesario ajustar el formulario de postulación adoptado con la Resolución número 750 de 2009, con el fin de incluir aspectos que se han incorporado en la normativa general, aplicable a las postulaciones para los Macroproyectos de Interés Social Nacional.
Que por lo anterior,
RESUELVE:
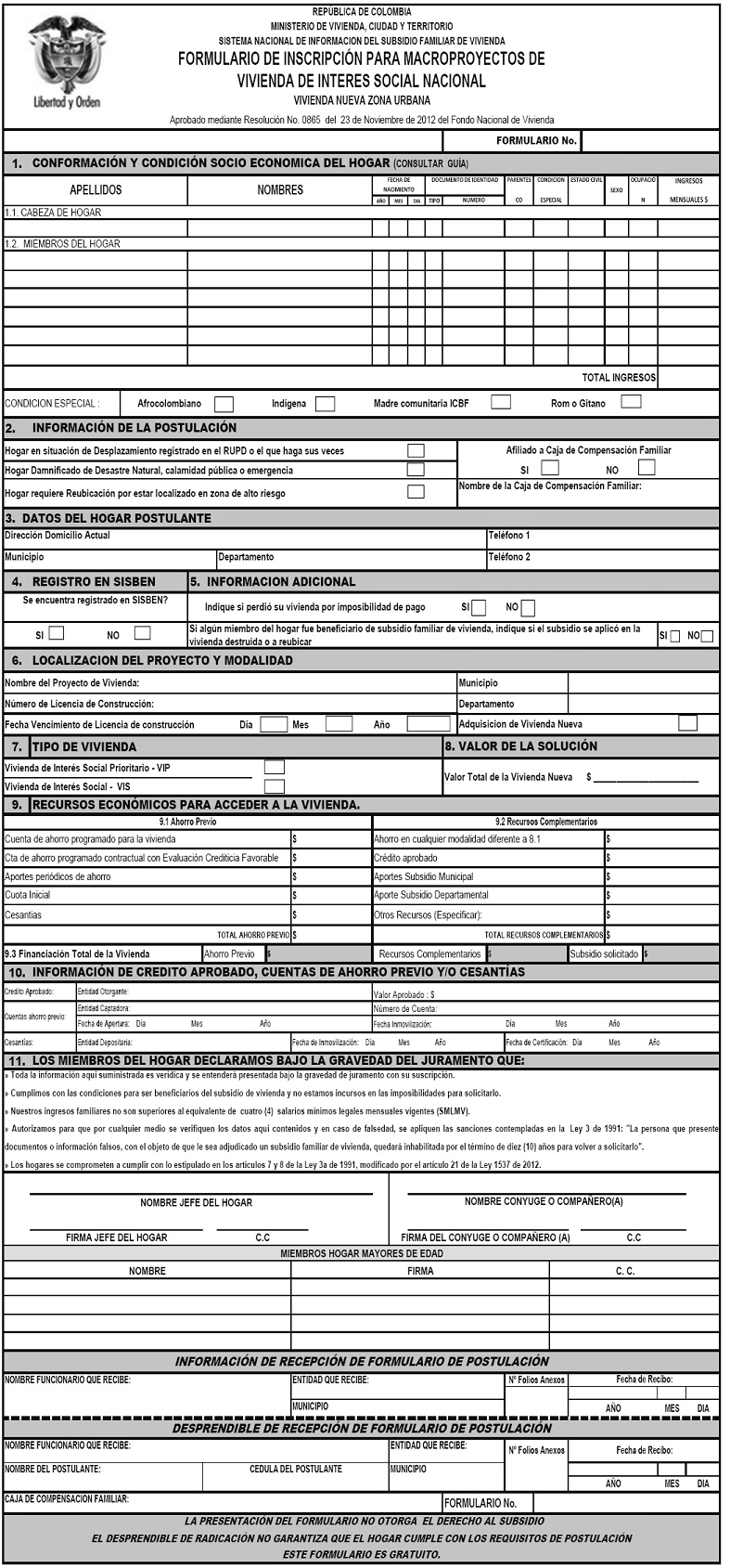
ARTÍCULO 1o. Adoptar el formulario y su guía de diligenciamiento para la postulación al subsidio familiar de vivienda vinculado a Macroproyectos de Interés Social Nacional, en la modalidad de adquisición de vivienda nueva, que se adjuntan a la presente resolución y que se denomina: “Formulario de Inscripción para Postulantes Vinculados a Macroproyectos de Interés Social Nacional”.
ARTÍCULO 2o. La presente resolución rige a partir de la fecha de su publicación.
Publíquese y cúmplase.
Dada en Bogotá, D. C., a 23 de noviembre de 2012.
El Director Ejecutivo del Fondo Nacional de Vivienda
JORGE ALEXÁNDER VARGAS MESA.

GUIA PARA EL DILIGENCIAMIENTO DEL FORMULARIO DE INSCRIPCIÓN PARA POSTULANTES DE LA BOLSA MACROPROYECTOS DE VIVIENDA DE INTERÉS SOCIAL NACIONAL
NOTAS IMPORTANTES:
-- Recuerde que el Formulario es Gratuito y puede ser fotocopiado.
-- Antes de diligenciar el Formulario, lea cuidadosamente esta guía.
-- El formulario debe desarrollarse dentro de los términos de la postulación y los criterios de calificación son los previstos en las normas vigentes.
-- Hogar Objeto del Subsidio Familiar de Vivienda: Se entiende por hogar el conformado por los cónyuges, las uniones maritales de hecho y/o el grupo de personas unidas por vínculos de parentesco hasta tercer grado de consanguinidad, segundo de afinidad y primero civil, que compartan un mismo espacio habitacional.
-- Postulante: Es aquel hogar que desea solicitar el Subsidio Familiar de Vivienda de Interés Social.
-- La postulación debe hacerse en la ciudad o municipio donde se desarrolla el Macroproyecto de Interés Social Nacional.
-- El Formulario puede llenarse a máquina o a mano en letra imprenta mayúscula dentro de cada una de las casillas correspondientes, no se aceptan tachaduras, enmendaduras o correcciones; en caso de detectarse alguna de estas situaciones el formulario será rechazado.
-- El hogar debe marcar un solo tipo de vivienda según el valor de la vivienda en el Macroproyecto.
REQUISITOS:
-- Ninguno de los miembros del hogar postulante puede ser propietario de vivienda.
-- Los ingresos totales de los miembros del hogar, deben ser iguales o inferiores a cuatro (4) salarios mínimos mensuales legales vigentes smlmv.
-- No haber sido beneficiario del Instituto de Crédito Territorial en ninguna de sus modalidades, aun cuando la vivienda haya sido transferida o hubiere sido uno de los cónyuges el titular de tales beneficios.
-- No haber sido el hogar o cualquiera de sus miembros beneficiario que haya recibido subsidio familiar de vivienda, o que siendo favorecido no ha presentado renuncia a su utilización en los casos de beneficios otorgados por el Fondo Nacional de Vivienda, el Instituto Nacional de Vivienda y Reforma Urbana – Inurbe – hoy en liquidación, la Caja Agraria hoy en liquidación, el Banco Agrario, Focafé, Forec, las Cajas de Compensación Familiar o cualquier entidad pública de cualquier orden en casos de calamidades naturales. Lo anterior no se aplica en caso que el beneficiario hubiere restituido el subsidio a la respectiva entidad otorgante.
-- No tener derecho, de acuerdo a las normas legales, a solicitar otros subsidios nacionales para vivienda diferentes de los que otorga el Fondo Nacional de Vivienda.
-- No estar restringida la posibilidad del hogar postulante o cualquiera de sus miembros, de acceder al subsidio familiar de vivienda por haber presentado información falsa o fraudulenta en cualquiera de los procesos de acceso al subsidio, dentro del término y de conformidad con la restricción que estará vigente durante diez (10) años conforme a los dispuesto en la Ley 3ª de 1991.
-- El ahorro previo no es requisito para la obtención del Subsidio Familiar de Vivienda, sin embargo el hogar debe tener garantizada la totalidad de la financiación de la vivienda antes de la asignación.
-- En caso de reubicación por riesgo no mitigable y de damnificados de desastres naturales, calamidad pública o emergencias, el hogar debe transferir el derecho de dominio o posesión al municipio del lote de terreno y el inmueble desalojado, del cual se es propietario o poseedor.
-- Pueden acceder al subsidio familiar de vivienda en calidad de desplazados los hogares registrados en el Registro Único de Población Desplazada- RUPD o el que haga sus veces.
-- Pueden acceder al subsidio familiar de vivienda en calidad de familias afectadas por desastres naturales, calamidad pública o emergencias y aquellos ubicados en zonas de alto riesgo no mitigable, los hogares que habitan la vivienda en calidad de propietarios, tenedores, arrendatarios, subarrendatarios o en usufructo.
-- Cumplir con los documentos que se deben anexar al formulario de postulación.
GUÍA
A continuación encuentra la explicación del contenido de cada uno de los numerales del formulario.
1. Conformación y Condición Socioeconómica del Hogar
Escriba en primer lugar los datos del jefe de hogar, quien se constituye en el postulante principal, a continuación relacione los demás miembros del hogar como con: esposa(o) o compañera(o), seguido de los hijos de mayor a menor y demás familiares.
Las casillas a diligenciar para cada uno de los integrantes del hogar correspondientes a:
Apellidos: Escriba los apellidos.
Nombres: Escriba el nombre o los nombres.
Fecha de Nacimiento: Año, mes y día.
Documento de Identidad:
Tipo: Corresponde al tipo de documento de identificación así:
CC: Cédula de ciudadanía.
CE: Cédula de extranjería.
ME: Menor de 18 años.
Número: Escriba el Número de identificación, solo si es mayor de 18 años.
Parentesco: Relacione el parentesco con el jefe del hogar de acuerdo con la siguiente numeración:
1. Jefe del hogar
2. Cónyuge o Compañera(o).
3. Hijo(a).
4. Hermano(a).
5. Padre o Madre.
6. Abuelo(a). Nieto(a). Bisabuelo(a), Bisnieto(a)
7. Tío(a), Sobrino(a)
8. Suegro(a), Cuñado(a)
9. Padres Adoptantes, Hijos adoptivos
10. Nuera, Yerno
Condición Especial del Postulante: Escriba si alguno de los miembros del hogar tiene alguna de las siguientes condiciones:
J. Hombre o Mujer Cabeza de Familia
D. Discapacitado.
M65. Mayor a 65 años.
MC. Madre comunitaria ICBF.
Estado Civil: Escriba el estado civil de cada miembro del hogar.
S: Soltero(a)
C: Casado(a) o Unión Marital de Hecho.
SP: Separado o Viudo.
Sexo: Escriba en esta casilla el sexo de cada uno de los integrantes del hogar:
F: Femenino
M: Masculino
Ocupación: Escriba el tipo de actividad que desempeñe cada uno de los integrantes del hogar según las convenciones:
H: Hogar.
EM: Empleado.
P: Pensionado
ES: Estudiante
I: Independiente
D: Desempleado.
Ingresos Mensuales: Escriba en esta casilla los ingresos de cada integrante del hogar.
Total Ingresos: Se refiere a la sumatoria de ingresos de todos los miembros del hogar.
Nota Importante: Recuerde que en caso de resultar beneficiarios del subsidio familiar de vivienda, los nombres e identificación aquí registrados aparecerán en la respectiva carta de asignación.
Condición especial del Hogar: Marque con una X, una sola de las opciones determinadas.
Afrocolombiano: Perteneciente a una comunidad afrocolombiana.
Indígena: Perteneciente a una comunidad Indígena.
Madre Comunitaria ICBF: Se encuentra vinculada al ICBF como Madre Comunitaria.
Rom o Gitano: Si pertenece actualmente a una comunidad Rom o Gitana.
2. Información de la Postulación
Hogar en situación de Desplazamiento registrado en el RUPD o el que haga sus veces: Marque X si el hogar presenta esta condición.
Hogar Damnificado de Desastre Natural, calamidad pública o emergencia: Marque X si el hogar presenta esta condición.
Hogar requiere Reubicación por estar localizado en zona de alto riesgo: Marque X si el hogar presenta esta condición y ha sido identificado y censado por el respectivo municipio.
Afiliado a Caja de Compensación Familiar: Marque SI con una X, si alguno de los miembros del hogar se encuentra afiliado a una Caja de Compensación Familiar e indique el nombre de la Caja de la cual es afiliado; en caso contrario marque NO con una X.
Cuando la Caja de Compensación Familiar no otorga subsidios a sus afiliados por no tener Fondo para Vivienda de Interés Social (Sin Fovis), o cuando la Caja teniendo el fondo, sus recursos son insuficientes (Fovis sin Cupo), el postulante debe presentar la certificación expedida por la Caja de Compensación Familiar, donde se informe que puede postular ante el Fondo Nacional de Vivienda por encontrarse en una de estas situaciones que le impiden otorgar Subsidios a sus afiliados.
3. Datos del hogar postulante
Escriba la dirección del domicilio actual, teléfonos, departamento y municipio, donde el hogar reside.
Por lo menos un número de teléfono es obligatorio
4. Registro en Sisbén
La Inscripción en el sistema Sisbén es requisito para la postulación al Subsidio Familiar de Vivienda.
Verifique su inscripción en el sistema SISBEN. Marque con X según corresponda.
5. Información Adicional
Indique si perdió su vivienda por imposibilidad de pago: Marque con una X según corresponda, en Sí o No.
Si algún miembro del hogar fue beneficiario de subsidio familiar de vivienda, indique si el subsidio se aplicó en la vivienda destruida o a reubicar: Marque con una X según corresponda, en Sí o No.
6. Localización del Proyecto y Modalidad
Nombre del Proyecto de Vivienda: Escriba el nombre del Proyecto del Macroproyecto de Interés Social Nacional al cual desea postularse para adquisición de vivienda nueva.
Número de Licencia de Construcción: Escriba el número de la licencia de construcción del Macroproyecto de Interés Social Nacional.
Fecha de Vencimiento de la Licencia de Construcción: Escriba la fecha de vencimiento de la licencia de construcción con el siguiente formato: DD (día) – MM (mes) –AAAA (año).
Municipio: Escriba el nombre del municipio o Distrito donde se encuentra ubicado el Macroproyecto de Interés Social Nacional al que desea postularse.
Departamento: Escriba el nombre del departamento donde se encuentra ubicado el Macroproyecto de Interés Social Nacional.
Adquisición de Vivienda Nueva: Confirme con una X la modalidad a la que corresponde la postulación. En todos los casos para Macroproyectos de Interés Social Nacional debe ser esta.
7.Tipo de Vivienda.
Marque con una X el tipo de la vivienda a adquirir según corresponda, así:
Vivienda de Interés Social Prioritario VIP: El valor de la vivienda en el Macroproyecto es igual o inferior a 70 Salarios Mínimos Legales Mensuales Vigentes- SMLMV.
Vivienda de Interés Social – VIS: El valor de la vivienda en el Macroproyecto es superior a 70 y hasta 135 salarios mínimos legales mensuales vigentes – SMLMV.
8. Valor de la Solución
Escriba el valor total de la vivienda nueva que desea adquirir en el Macroproyecto.
9. Recursos Económicos para Acceder a la Vivienda
9.1. Ahorro Previo: El ahorro previo no se requiere para la postulación al subsidio familiar de vivienda para familias con ingresos menores a 2 SMLMV, no obstante hace parte de las variables de calificación, por lo cual se detallan las modalidades en caso de que se cuente con ahorro.
Escriba en cada casilla el valor, de acuerdo con las modalidades propuestas así:
Cuenta de ahorro programado para la vivienda y ahorro programado contractual con evaluación crediticia favorable previa: Escriba el saldo certificado por la entidad respectiva al momento de la postulación.
El ahorro previo, en las modalidades de cuentas de ahorro programado para la vivienda y cuentas de ahorro programado contractual con evaluación crediticia favorable previa, se realizará en establecimientos de crédito vigilados por la Superintendencia Financiera de Colombia; cooperativas de ahorro y crédito y multiactivas e integrales con sección de ahorro y crédito previamente autorizadas por la Superintendencia de la Economía Solidaria para el ejercicio de la actividad financiera, vigiladas por esta misma entidad e inscritas en el Fondo de Garantías de Entidades Cooperativas – Fogacoop; el Fondo Nacional del Ahorro.
Aportes periódicos de ahorro: Escriba el saldo de los aportes periódicos de ahorro en el momento de la postulación.
El ahorro previo en la modalidad de aportes periódicos, se realizará en Fondos Comunes Especiales administrados por Sociedades Fiduciarias cuya finalidad específica sea que sus aportantes adquieran vivienda; en Fondos Mutuos de Inversión vigilados por la Superintendencia Financiera de Colombia; en las Cooperativas Financieras y en los Fondos de Empleados vigilados por la Superintendencia de Economía Solidaria.
Cuota Inicial: Escriba el valor de los recibos de caja o consignaciones a favor del oferente del proyecto de vivienda en el momento de la postulación.
Cuando el ahorro previo esté constituido por la cuota inicial, ésta deberá haberse abonado en el proyecto en donde se aplicará el subsidio familiar de vivienda, lo cual deberá ser certificado por el oferente o constructor privado, a través de su representante legal y su revisor fiscal, adjuntando los respectivos recibos de caja o consignaciones, donde conste la(s) fecha(s) de pago de la misma.
Cesantías: Escriba el saldo de las cesantías acumuladas que certifique la entidad respectiva el cual está representado en los depósitos efectuados en fondos públicos o privados de cesantías o en el Fondo Nacional de Ahorro.
Total Ahorro Previo: Escriba la sumatoria de los ítems del punto 9.1
9.2. Recursos Complementarios:
Ahorro en cualquier modalidad diferente a los relacionados en 8.1: Escriba el valor total del ahorro previo en cualquier modalidad, certificado por la entidad respectiva.
Crédito Aprobado: Indique el monto del crédito aprobado certificado por entidad habilitada para otorgar crédito.
Aportes Subsidio Municipal: Escriba el valor del subsidio otorgado por el municipio debidamente certificado por el ente territorial.
Aportes Subsidio Departamental: Escriba el valor del subsidio otorgado por el Departamento, si aplica, debidamente certificado por el ente territorial.
Otros recursos: Escriba el valor de los aportes solidarios certificados por la respectiva entidad y otra modalidad de recursos, especificando a qué corresponde.
Total Recursos Complementarios: Escriba la sumatoria de los ítems del punto 9.2
9.3. Financiación Total de la Vivienda: Indique en cada espacio los valores correspondientes.
Para Adquisición de Vivienda Nueva, la financiación total de la vivienda se obtiene de sumar: el total del ahorro previo, recursos complementarios y subsidio solicitado; el valor obtenido debe ser igual al total registrado en el punto 8.
Valor Subsidio Solicitado: El monto del subsidio familiar de vivienda podrá ser hasta de veintidós (22) salarios mínimos legales mensuales vigentes - SMLMV. En todo caso el valor del subsidio dependerá del monto de los recursos aportados por Fonvivienda en cada Macroproyecto.
10. Información de Crédito Aprobado, Cuentas de Ahorro Previo y/o Cesantías
Describa los datos requeridos según el caso en las casillas estipuladas para tal fin.
Crédito Aprobado: Escriba el nombre de la entidad otorgante y el valor aprobado del crédito.
Cuentas de Ahorro Previo: Escriba el nombre de la entidad captadora, indique el número de la cuenta, la fecha de apertura y la fecha de inmovilización.
Cesantías: Escriba la entidad depositaria de aquellas, fecha de inmovilización y la fecha de certificación.
11. Declaración Juramentada
Deberá leer esta declaración que el hogar realiza bajo juramento, constatando que todos los datos consignados en el formulario son ajustados a la verdad, a continuación escriba el nombre del jefe del hogar, cónyuge o compañero(a) y miembros del hogar mayores de edad, con sus correspondientes números de documentos de identificación.
Cada uno debe firmar el formulario en la casilla correspondiente.
INFORMACIÓN DE RECEPCIÓN DE FORMULARIO DE POSTULACIÓN
Las casillas del nombre de quien recibe, entidad que recibe, fecha de recepción, número de folios, serán diligenciadas por el funcionario de la Gerencia o entidad operadora donde usted se está postulando.
En el momento de la entrega del formulario y los documentos anexos, deberá solicitar el desprendible, y verificar que el nombre del funcionario que recibe sea claro al igual que la entidad, que tenga la fecha de recepción y que esté debidamente firmado.
Conserve el desprendible del formulario para solicitar cualquier información en el futuro.
DOCUMENTOS QUE SE DEBEN ANEXAR AL FORMULARIO DE POSTULACIÓN
El formulario debe presentarse debidamente diligenciado y suscrito por todos los miembros mayores de edad que conforman el hogar.
-- Fotocopia legible de las cédulas de ciudadanía de los mayores de edad.
-- Registro civil de nacimiento de los miembros menores que conforman el hogar.
-- Registro civil de matrimonio o prueba de Unión marital de hecho en los términos del artículo 2o de la Ley 979 de 2005.
-- Certificación expedida por el ICBF que acredite la condición de madre comunitaria ICBF, si aplica.
-- Certificaciones expedidas por el Ministerio del Interior en la que se acredite la condición de Afrocolombiano, Indígena, Rom o Gitano, según corresponda.
-- Certificado médico que acredite la discapacidad física o mental de alguno de los miembros del hogar, si lo hubiere.
-- En caso de postulantes o miembros hogar afiliados a Cajas de Compensación Familiar no obligadas a constituir Fondo de Vivienda o que sus recursos sean insuficientes: certificación de la Caja respectiva en donde se acrediten las condiciones anteriormente descritas.
-- En caso de poseer cuenta de ahorro programado o cuenta de ahorro programado con evaluación crediticia favorable previa, debe anexar certificación de la entidad donde tiene la cuenta, con fecha de apertura e inmovilización, saldo a la fecha, número de cédula, nombre del titular de la cuenta, número de la cuenta, con fecha de expedición no mayor a 30 días.
-- Certificación(es) del(os) Fondo(s) Común(es) Especial(es) y/o Fondo(s) Mutuo(s) de Inversión donde se encuentren los aportes periódicos, con fecha de apertura, saldo a la fecha, número de cédula, nombre del titular de la cuenta, número de la cuenta, con fecha de expedición no mayor a 30 días.
-- Certificación expedida por el oferente o constructor privado, a través de su representante legal y su revisor fiscal o Contador Público Titulado según aplique, adjuntando los respectivos recibos de caja o consignaciones, donde conste la(s) fecha (s) de pago, cuando el ahorro previo esté representado en cuota inicial.
-- Si el ahorro está representado en cesantías, Certificación(es) del(os) Fondo(s) de Cesantías donde están radicadas, con el valor destinado para vivienda y fecha de inmovilización, nombre y cédula del titular, con fecha de expedición no mayor a 30 días.
-- Carta de aprobación de crédito, la cual debe contener el resultado favorable del análisis de riesgo crediticio del solicitante o solicitantes en aquellos aspectos atinentes a su capacidad de endeudamiento actual, comportamiento crediticio, hábitos de pago y confirmación de referencias. Adicionalmente deberá contener la información de los solicitantes y las características y condiciones de la operación. Debe ser expedido con fecha no superior a 30 días. Este requisito debe anexarse en casos en que el crédito forme parte de los recursos complementarios para la postulación de aquellos hogares que requieren cierre financiero al momento de postularse.
-- Resolución o Acto Administrativo de asignación del subsidio que aporta el Municipio o Distrito y el Departamento, en el cual se relaciona el aporte con carácter no reembolsable, en donde conste el valor del subsidio individual.
-- Certificación de otros recursos económicos expedida por la entidad respectiva.
Adicional a los documentos enunciados, las poblaciones vulnerables o aquellas que informen su vinculación a alguna condición del hogar deben anexar los siguientes documentos, según el caso:
Documentos adicionales para población que será reubicada por habitar en zonas de alto riesgo no mitigable o afectada por una situación de desastre, calamidad pública o emergencia por eventos de origen natural.
-- Certificación expedida por la oficina de planeación municipal o quien haga sus veces, donde conste una de las siguientes situaciones:
-- Que la vivienda se encuentra ubicada en zona de alto riesgo no mitigable, de acuerdo con lo establecido en el Plan de Ordenamiento Territorial adoptado en el municipio.
-- Que el inmueble donde está ubicada la vivienda quedó, como consecuencia de los hechos, en una zona de alto riesgo no mitigable.
-- Los hogares propietarios del inmueble que se encuentra ubicado en cualquiera de las anteriores situaciones descritas, entregarán al operador del subsidio el certificado de registro de instrumentos públicos donde conste la transferencia del inmueble o predio al municipio. Este requisito debe cumplirse para efectos del desembolso del subsidio familiar de vivienda.
-- Los hogares poseedores del inmueble que se encuentra ubicado en cualquiera de las anteriores situaciones descritas, deberán presentar al operador del subsidio documento dirigido al municipio en el cual se comprometen a cesar la posesión sobre el inmueble, a no ocuparlo o habitarlo nuevamente. Este requisito debe cumplirse para efectos del desembolso del subsidio familiar de vivienda.
NO SE RECIBIRÁN FORMULARIOS SIN LOS DOCUMENTOS SOLICITADOS EN ESTOS.